< Ga terug

Jonkheer de Jongestraat 6

(2-kamer appartement), Hoogeveen

€ 957,26 p.m. exclusief

Woonoppervlakte
60 m²
Aantal kamers
2
Aantal slaapkamers
1
Bouwjaar
2020


Omschrijving

Per 1 maart 2026 is dit zeer nette tweekamerappartement beschikbaar in het centrum van Hoogeveen. Gelegen aan de bekende winkelstraat die Hoogeveen te bieden heeft: de Hoofdstraat. Op loopafstand zijn diverse eetgelegenheden, winkels en dergelijke te vinden. Voor ieder wat wils!

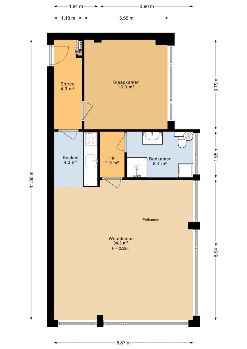
Het complex bestaat uit drie verdiepingen; het appartement is gelegen op de tweede woonlaag. Er bevindt zich een gezamenlijke berging waar bewoners hun fietsen kunnen stallen. De woning beschikt over een ruime woonkamer met open keuken, welke is voorzien van een koel-vriescombinatie, kookplaat en afzuigkap. Via de hal kunt u de ruime slaapkamer betreden.
Via de tweede hal komt u in de badkamer, welke is voorzien van een douche, wastafel, toilet en wasmachineaansluiting.

Op de bovenste verdieping bevindt zich een dakterras waarvan gezamenlijk gebruik mag worden gemaakt met de medebewoners.


HUURPRIJS
Huurprijs   
Kale huurprijs € 957,26
Voorschot servicekosten € 100,00
Voorschot gas, water, elektra  € 30,00
Totaal  € 1087,26

INKOMENSEIS
De inkomenseis voor deze woning is 3 keer de kale huur aan bruto-inkomen. 

BETALING
De waarborgsom voor het huren van deze woonruimte staat gelijk aan een maand huur en bij het tekenen van het contract dient de eerste maandhuur vooruitbetaald te worden.

GEÏNTERESSEERD?
Maak gratis een account aan op onze website om te reageren. De bezichtigingen worden toegewezen via willekeurige loting. Je ontvangt bericht of je bent ingeloot voor een bezichtiging.

HUIS VAN VERHUUR
Huis van verhuur biedt transparantie in de woonbemiddeling tussen huurder en verhuurder. Met een groot aanbod in huurwoningen zoals nette kamers, comfortabele studio's, ruime appartementen en royale vrijstaande woningen op toplocaties in noord- en midden Nederland is Huis van Verhuur de ideale speler voor het huren van woonruimte.

Details

Status: Beschikbaar
Wijk: Centrum
Categorie: Appartement
Bestaand / nieuwbouw: Nieuwbouw
Interieur: Gestoffeerd
Huurprijs: € 957,26
exclusief
Woonoppervlakte: 60 m²
Aantal kamers: 2
Aantal slaapkamers: 1
Woonlagen: 1
Ligging: Bovenwoning
Keuken: Eigen
Douche: Eigen
Toilet: Eigen
Buiten: Gedeeld
Huisdieren: Niet toegestaan
Stellen: Toegestaan
Aanvaarding: 01-03-2026
Min. huurperiode: 12 Maanden
Parkeren: In de directe omgeving
Energielabel: A
Garage / Berging: Nee
Bouwjaar: 2020

Copyright © 2026. All rights reserved. Voorwaarden | Privacy Policy