< Ga terug

Damsterdiep 3

(D), Groningen

€ 1060,00 p.m. inclusief

Verhuurd
Woonoppervlakte
28 m²
Bouwjaar
1915


Omschrijving

Per 15 maart 2026 (of eerder in overleg) is deze gezellige ruime studio beschikbaar aan het Damsterdiep 3 in Groningen. De studio bevindt zich op de eerste verdieping van een recent gerenoveerd kleinschalig wooncomplex. De studio is gelegen op loopafstand van de binnenstad van Groningen, waardoor verschillende winkels en horecagelegenheden op loopafstand bereikbaar zijn. 

INDELING:
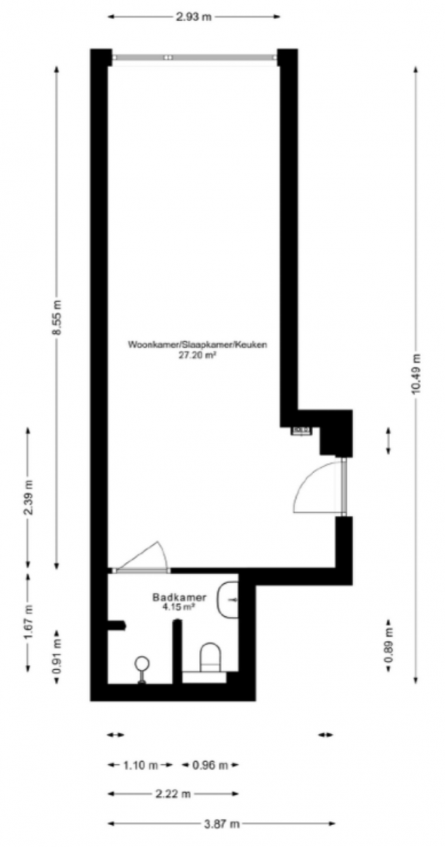
De woon-/slaapkamer van 27 m2 beschikt over een (split)airco waarmee de studio zowel verwarmd als verkoeld kan worden, de keuken is voorzien van een luxe mengkraan, spoelbak, inductiekookplaat, vaatwasser, koelkast (met vriesvakje), afzuigkap en een combimagnetron. De badkamer is voorzien van een inloop (regen)douche, een hangend toilet en een wastafelmeubel. 

In het complex bevindt zich een gemeenschappelijke wasruimte voorzien van twee wasmachines en twee drogers. 

HUURPRIJS:
De huurprijs van deze studio is als volgt opgebouwd:
Kale huurprijs €910,00
Voorschot servicekosten (incl. GWL) €150,00 
Totaal per maand te voldoen €1.060,00*
*Exclusief gemeentelijke belastingen 

De waarborgsom voor het huren van deze studio staat gelijk aan één maand huur.

INTERESSE
Heb je interesse in deze studio en wil je deze studio graag bezichtigen? Dan kun je reageren via onze website! Zowel het inschrijven als het reageren is gratis. Voor vragen over deze studio kun je contact opnemen met ons kantoor via groningen@huisvanverhuur.nl

HUIS VAN VERHUUR 
Huis van Verhuur biedt transparantie in de woonbemiddeling tussen huurder en verhuurder. Met een groot aanbod in huurwoningen zoals nette kamers, mooie appartementen, fijne studio's en royale vrijstaande woningen op toplocaties in Groningen en Zwolle is Huis van Verhuur de ideale speler voor het huren van woonruimte.

Details

Status: Verhuurd
Wijk: Binnenstad-Oost
Categorie: Studio
Bestaand / nieuwbouw: Bestaand
Interieur: Gestoffeerd
Huurprijs: € 1060,00
inclusief
Woonoppervlakte: 28 m²
Ligging: Bovenwoning
Keuken: Eigen
Douche: Eigen
Toilet: Eigen
Buiten: N.v.t.
Huisdieren: Niet toegestaan
Stellen: Niet toegestaan
Huursubsidie: Mogelijk
Aanvaarding: Per direct
Min. huurperiode: 12 Maanden
Parkeren: In de directe omgeving
Parkeervergunning: Vereist
Isolatie: Goed
Energielabel: A++
Verwarming: Elektrisch

Bouwjaar: 1915

Copyright © 2026. All rights reserved. Voorwaarden | Privacy Policy